The Frank

SKU: The Frank Category: Tag:
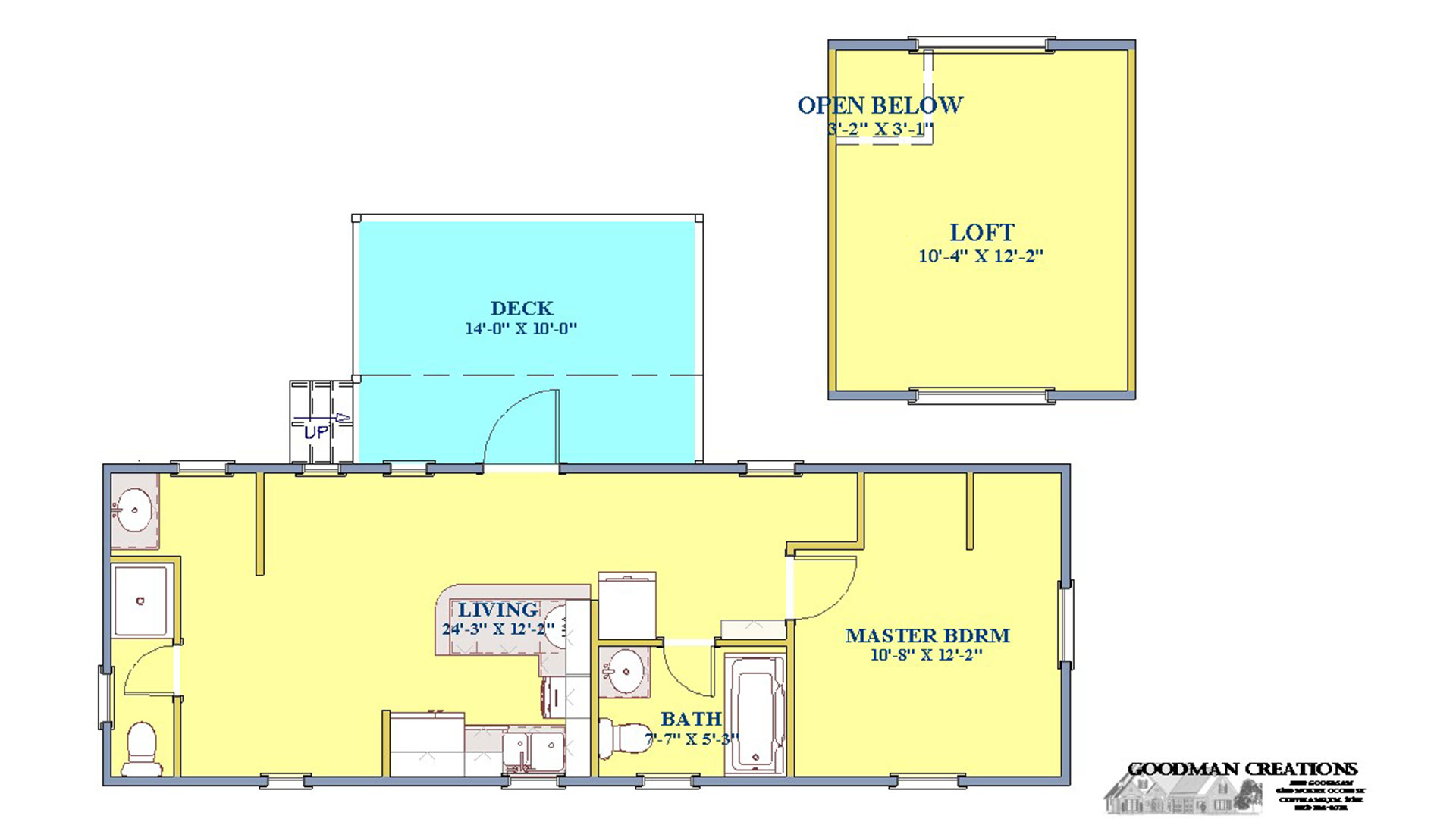
Total Sq Ft 596
Beds 2
Baths 2
Floors 2
Garages 0

Plan Features

  • Kitchen
  • Living Room