The Daws

SKU: The Daws Category: Tag:
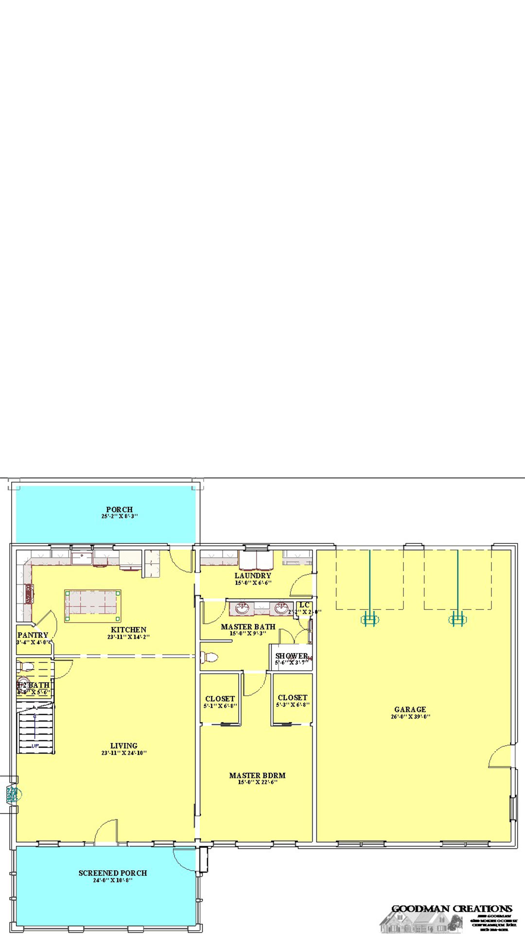
Total Sq Ft 2013
Beds 1
Baths 1
Floors 2
Garages 2

Plan Features

  • Kitchen
  • Living Room
  • Large Pantry
  • Laundry Room
  • Loft