The Arp

SKU: The Arp Category: Tag:
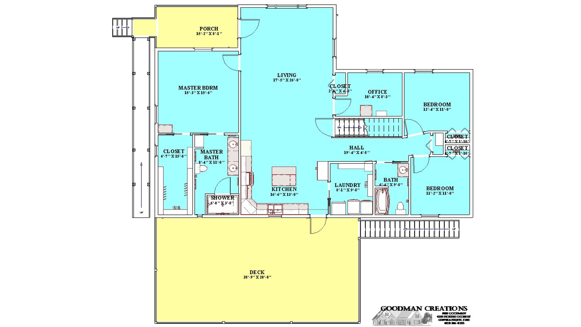
Total Sq Ft 1950
Beds 3
Baths 2.5
Floors 1
Garages 0

Plan Features

  • Kitchen
  • Living Room
  • Dining Room
  • Office